50-60 seniorenwoningen - Vijverhof
Delft

Seniorenwoningen rondom een hof met collectief programma

Architectuur
 

Locatie. Delft
Opdrachtgever. Local Development B.V. i.s.m. Habion
Partners. Hamlet, IMd Raadgevende Ingenieurs, DGMR

Omvang. 50-60 appartementen
Ontwerp. 2017- 2020
Uitvoering. 2023-2025

SO+

De Vijverhof is een wooncomplex voor senioren in de Buitenhof in Delft. Met de uitbreiding ontstaat een nieuw hof dat oud en nieuw met elkaar verbindt. Het ontwerp versterkt niet alleen de fysieke samenhang tussen bestaand en nieuwbouw, maar ook de sociale verbinding tussen bewoners.
In het nieuwe gebouw woont circa 90% senioren en 10% studenten. De studenten ondersteunen de senioren in het dagelijks leven, in ruil voor betaalbare woonruimte. Zo ontstaat een intergenerationele woonvorm waarin ontmoeting en informele zorg vanzelfsprekend zijn.

Uitbreiding in een
naoorlogse woonwijk

De Vijverhof ligt in de Buitenhof, een naoorlogse wijk met een orthogonale stedenbouwkundige structuur. Het groen is ruim aanwezig, maar heeft momenteel weinig betekenis als verblijfsplek.

De Buitenhofdreef vormt één van de hoofdassen van de wijk en biedt kansen voor verdichting en kwaliteitsverbetering. De uitbreiding grijpt deze kans aan door de buitenruimte te activeren en de relatie tussen gebouw en straat te versterken. Door entrees aan de dreef te positioneren krijgt het gebouw een duidelijke voorkant en ontstaat er meer sociale interactie tussen bewoners en buurt.

Massaopbouw

bestaand

sloop

nieuw

Plint met collectieve functies

De kracht van de Vijverhof ligt in het collectieve karakter. In de plint bevinden zich diverse ontmoetingsplekken onder de naam Liv Inn. Elke Liv Inn heeft een eigen, lokaal karakter en is samen met bewoners ontwikkeld.

In dit complex komen onder andere:

  • een leefkeuken

  • een binnentuin

  • een bibliotheek

  • een wel-yes (wellness- en beweegruimte) (in nieuwbouw)

  • een gezamenlijke moestuin (in nieuwbouw)

Deze functies stimuleren ontmoeting, activiteit en dagbesteding voor senioren. De ruimtes worden beheerd door de bewoners zelf, waarbij Habion hen ondersteunt en opleidt in organisatie en beheer. Zo ontstaat eigenaarschap en een hechte gemeenschap.

Hof als verbindend element

Het nieuwe hof vormt het hart van het plan. Het verbindt de bestaande en nieuwe collectieve functies in de plint en legt tegelijkertijd een essentiële relatie tussen bestaande en nieuwe bewoners. Aan het hof komt een leefgalerij en de gevels van het bestaande gebouw aan het hof worden aangepakt.

De gezamenlijke moestuin versterkt de relatie met het groen in de wijk en nodigt ook omwonenden uit tot ontmoeting. Het hof wordt daarmee niet alleen een plek voor bewoners, maar een schakelpunt tussen complex en buurt.

huidige werking complex met entree aan achterzijde

nieuw gebruik complex met nieuwe entrees aan de voorzijde

Leefgalerij aan hofzijde

plattegrond begane grond

plattegrond standaard verdieping

Ontworpen met een 2D modulair houtbouwsysteem

Het gebouw is ontworpen op basis van een 2D modulair houtbouwsysteem. Deze bouwmethode maakt gebruik van geprefabriceerde houten elementen die op locatie snel en efficiënt worden gemonteerd.

Dit biedt meerdere voordelen:

  • Snelle realisatie – essentieel in een situatie waar bestaande bewoners direct naast de bouwlocatie wonen. De bouwtijd op locatie wordt aanzienlijk verkort, wat overlast minimaliseert.

  • Hoge bouwkwaliteit – prefabricage zorgt voor precisie en consistente kwaliteit.

  • Flexibiliteit – het modulaire systeem maakt aanpasbaarheid in indeling en toekomstbestendigheid mogelijk.

  • Biobased en duurzaam – hout slaat CO₂ op en heeft een lagere milieubelasting dan traditionele bouwmaterialen.

Het systeem vraagt om een heldere ritmiek en repetitie in de plattegrond en gevel. Deze logica is vertaald naar een architectuur met een duidelijke maat en schaal, passend bij de wijk en herkenbaar in zijn structuur.

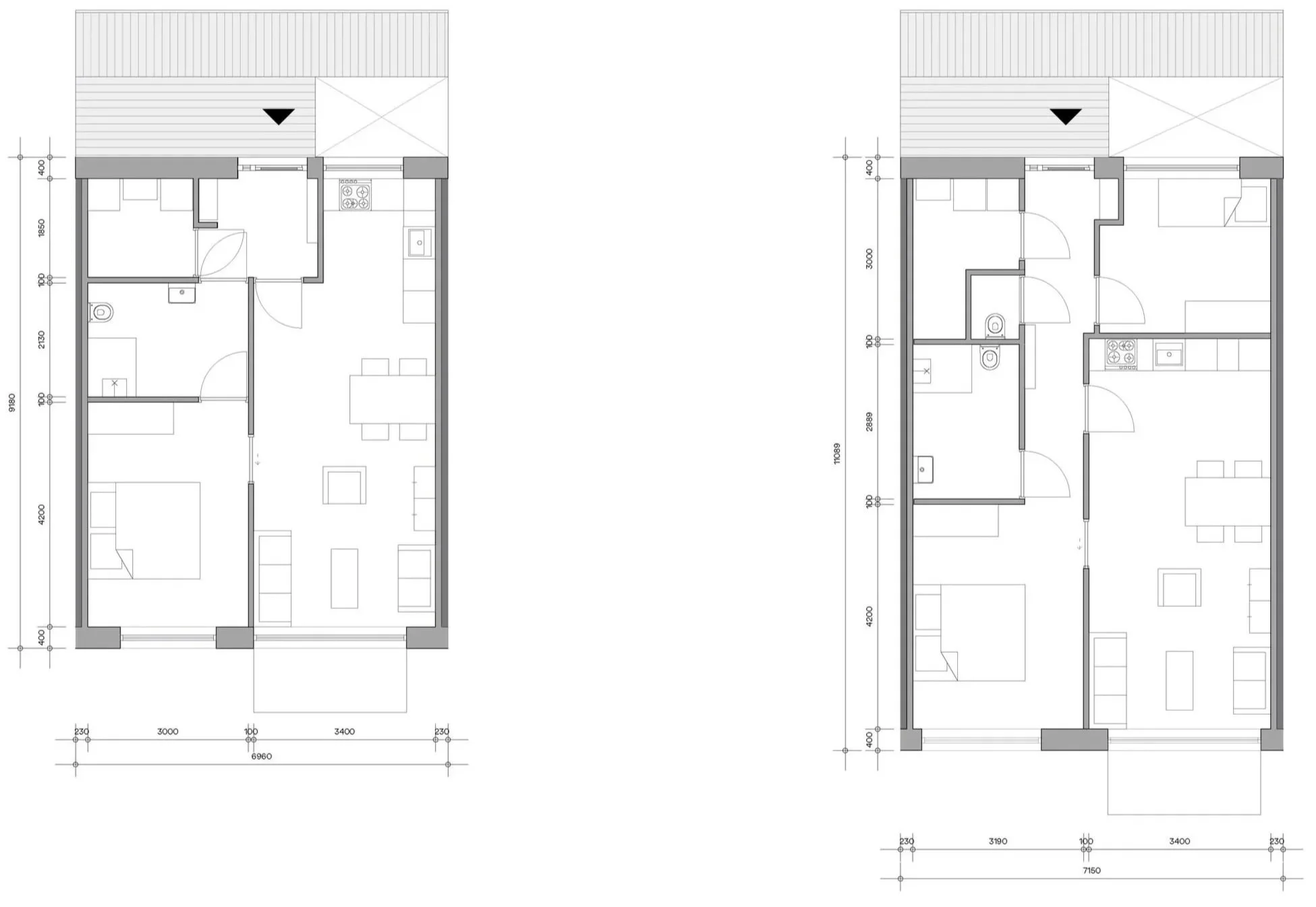
Heldere plattegronden conform woonkeur

De woningen voldoen aan de richtlijnen van Woonkeur en zijn ontworpen met oog voor toegankelijkheid en comfort. Drempelloze overgangen, ruime badkamers en logische indelingen maken de woningen geschikt voor langdurig en zelfstandig wonen.

Binnen de modulaire opzet zijn de woningen efficiënt georganiseerd zonder in te leveren op woonkwaliteit. De heldere structuur zorgt voor herkenbaarheid, comfort en flexibiliteit op lange termijn.

Zo ontstaat een toekomstbestendig woongebouw waarin architectuur, duurzaamheid en sociale kwaliteit samenkomen.

2-kamer appartment

3-kamer appartment

Meer weten over dit project?